Unsere aktuellen Verkaufsangebote

Ausgewählte Immobilienobjekte zur Eigennutzung oder als Kapitalanlage finden Sie bei uns sowohl in der Metropolregion Hamburg als auch in Schleswig-Holstein und Niedersachsen. Damit sind Ihrem zukünftigen Lebensmittelpunkt oder Investment kaum Grenzen gesetzt.

Unsere Leidenschaft ist es, Ihnen Ihr neues Zuhause zu vermitteln. Dafür stehen wir Ihnen mit unserer langjährigen Erfahrung gerne zur Seite. Einen Überblick über unsere aktuellen Immobilien zum Kauf sehen Sie hier.

7 Zimmer und mehr! Familienfreundliches Einfamilienhaus in Neuengamme
Neuengammer Hausdeich 457
21039 Hamburg / Neuengamme
Objektart: House
Zimmer: 7,00
Wohnfläche: 104 m²
Grundstücksfläche: 617 m²
Baujahr: 1937
Verkaufsstatus: OFFEN
Kaufpreis: 340.000,00 €

Druckversion
Nutzungsart
Wohnen
Vermarktungsart
Kauf
Objektart
House
Objekttyp
Detached house
Plz
21039
Ort
Hamburg / Neuengamme
Zimmer
7,00
Wohnfläche
104 m²
Nutzfläche
64 m²
Grundstücksgröße
617 m²
Baujahr
1937
Kaufpreis
340.000,00 €
Käufercourtage
3,57 % des Kaufpreises inkl. 19 % USt.
Zustand
sanierungsbeduerftig
Verfügbar ab
Nach Absprache
Heizungsart
Zentral
Befeuerung
Gas
Anzahl Zimmer
7,00
Anzahl Badezimmer
3,00
Anzahl Terrassen
1,00
Energieausweis
Energiebedarf: 300.50
Wertklasse: H
Gültig bis: 17.03.2036
Primärer Energieträger: Gas
In einer gewachsenen Wohnlage von Neuengamme präsentiert sich das familienfreundliche Einfamilienhaus auf einem ca. 617 m² großen Grundstück und teilt sich auf in ca. 575 m² Wohngrundstück und ca. 42 m² Grundstücksanteil an der Zufahrt. Das gewachsene Umfeld schafft ein ideales Zuhause für Familien, die Wert auf Ruhe, Privatsphäre und Freizeitmöglichkeiten am Wasser legen.
Ein besonderes Highlight ist der gegenüberliegende Bootsanleger an der Dove Elbe, der nach Absprache eventuell übernommen werden kann – perfekt für Freizeitaktivitäten direkt vor der Haustür.

Das Grundstück von insgesamt 1.025 m² umfasst die Flurstücke 4949 und 4951 und ist ideell geteilt. Zum Verkauf steht ein 1/2 Miteigentumsanteil verbunden mit dem Sondereigentum Nr. 1 (blau gekennzeichnet), bestehend aus einem massiv gebauten Einfamilienhaus sowie den Sondernutzungsrechten an Carport und Gartenhaus. Die gemeinschaftlich genutzte Fläche (rot gekennzeichnet) dient als Zufahrt zu dem Carport-Pkw-Stellplatz. Die Aufteilung von Sonder- und Gemeinschaftseigentum ist in der Teilungserklärung geregelt und kann auf Wunsch eingesehen werden.

Das Einfamilienhaus wurde ca. 1938 in massiver Bauweise gebaut und erstreckt sich über drei Ebenen.
Das wohnlich ausgebaute Untergeschoss mit ca. 64 m² ist von der Gartenseite ebenerdig zugänglich und verfügt über eine Deckenhöhe von ca. 2,50 m. Alle Räume sind beheizt und eignen sich ideal als separate Wohneinheit oder zusätzlichen Wohnraum und wurden 2001 modernisiert. Es bietet eine gemütliche Wohnküche, ein Schlafzimmer und ein modernes Wannenbad mit zwei Waschbecken, Bidet und WC und dem Heizungs-/Technikraum.
Erwähnenswert ist abschließend zu dem Untergeschoss, dass der straßenseitige Bereich unter Geländeniveau liegt und das Geschoss gartenseitig ebenerdig ist. Dadurch sind die Räume angenehm hell und voll nutzbar. Baujahrestypisch ist teilweise Feuchtigkeit im Untergeschoss vorhanden.

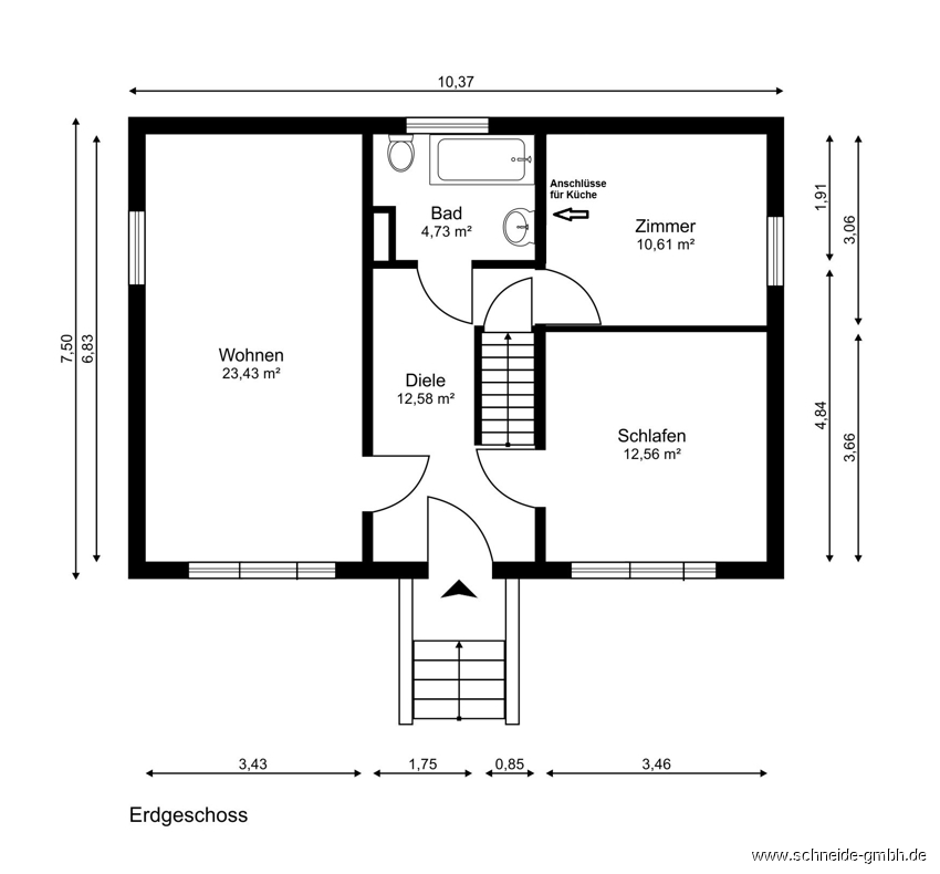
Das Erdgeschoss mit ca. 64 m² Wohnfläche überzeugt durch die gelungene Raumaufteilung und ist sowohl von der Straßenseite als auch vom Untergeschoss begehbar. Ein geräumiges Wohnzimmer, zwei weitere Zimmer, von denen sich eines bei Bedarf gut als Küche nutzen lässt, sowie ein Wannenbad aus den 1980er Jahren mit Blick in den Garten bieten ausreichend Platz. Charmante Holzdielenböden in den Wohnräumen und im Flur, stilvolle Altbautüren und die angenehme Deckenhöhe verleihen dieser Ebene eine besonders wohnliche Atmosphäre.

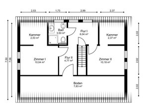
Vom Flur im Erdgeschoss führt eine geschlossene Holztreppe in das ausgebaute Dachgeschoss mit ca. 40 m² Wohnfläche. Zwei Zimmer jeweils mit einer praktischen Abstellkammer, Flur und ein modernes Duschbad aus 2001 stehen hier für weiteren Wohnraum zur Verfügung. Ein praktischer Bodenraum dient als Abstellfläche. Die nachträglich eingebaute Dachgaube aus 2003 verleiht dem Flur viel Licht und einen schönen Ausblick.

Das Haus wurde über die Jahre liebevoll gepflegt und laufend instandgesetzt. Jedoch besteht aufgrund des Baujahres und der Abnutzung teilweise Renovierungsbedarf bei der Elektrik, Wasseranschlüssen, Feuchtigkeitsbehandlung im Untergeschoss sowie im Dachgeschoss.

Die Außenanlage besticht durch den geschmackvollen Süd-West-Garten und ist durch Hecken, Sträucher und Rasenflächen eingefriedet. Eine große Terrasse, die teilweise überdacht ist und eine Markise sind vorhanden. Das Gartenhaus mit ca. 24 m² Grundfläche sowie einen Carport, jeweils aus 2003, fügen sich geschickt in den hinteren Gartenbereich ein. Ein optischer Blickfang ist ein gemauerter Brunnen, welcher jedoch nicht angeschlossen ist.

Gern präsentieren wir Ihnen diese Immobilie persönlich im Rahmen eines abgestimmten Besichtigungstermins. Aus Rücksicht auf die Privatsphäre der Eigentümerin bitten wir, von eigenständigen Begehungen abzusehen.

Weitere Einzelheiten entnehmen Sie bitte den weiteren Ausführungen und die Raumaufteilung den beigefügten Grundrissen.
Baustoffe, usw.:

• Massive Bauweise (ca. Bj. 1938)
• Verblendfassade
• Satteldach mit Schieferschindeln
• Dachgaube mit Kunstschiefer verkleidet (Bj. 2003)
• Dachunterschläge aus Holz
• Betondecke (UG/EG)
• Holzdecke (EG/DG)
• Fallrohre und Dachrinnen aus Zink und teilweise Kunststoff


Fenster/Tür/Treppe/Bodenbeläge:

• Kunstofffenster (UG/EG, Bj. 2016 - 2019)
• Kunstofffenster (DG, ca. Bj. 2009)
• Zwei Fenster nicht erneuert (UG/EG)
• Kunststoff-Rollläden (teilweise UG)
• Kunststoffhaustür mit Lichtausschnitt (UG/EG)
• Holzinnentüren /- zargen (Kiefer-Landhausstil/ UG)
• Holzinnentüren /- zargen (Weißlack-Stiltüren/ EG)
• Holzinnentüren /- zargen furniert (DG)
• Offene Kiefernholztreppe-/ handlauf (UG/EG)
• Geschlossene Holztreppe-/ handlauf (EG/DG)
• Bodenbeläge: Fliesen (Untergeschoss) Dielenböden (Erdgeschoss), Fliesen in allen Bädern, Holzdielen mit Teppich belegt (Dachgeschoss)


Sanitärobjekte:

Wannenbad (Untergeschoss, Bj. 2001):

• Wand- und Bodenfliesen (weiß/ anthrazit)
• Wandhängendes-WC mit Unterputz-Spülkasten
• Wandhängendes Bidet
• Doppelwaschtisch
• Sanitärobjekte in weiß
• Eckbadewanne
• Handtuchheizkörper
• Fußbodenerwärmung über Rücklauf


Wannenbad (Erdgeschoss; Bj. ca. 80èr):

• Wand- und Bodenfliesen (beige)
• Wandhängendes-WC mit Spülkasten
• Sanitärobjekte in beige
• Fenster


Duschbad (Dachgeschoss, Bj. 2001):

• Wand- und Bodenfliesen (weiß)
• Wandhängendes-WC mit Unterputz-Spülkasten
• Bidet
• Waschbecken
• Sanitärobjekte in weiß
• Dusche
• Fenster


Heizungsanlage:

• Gas-Zentralheizung, Bj. 2016 , Fa. Viessmann
• Zentrale Warmwasseraufbereitung über Heizung
• Plattenheizkörper


Außenanlagen

• Carport (Bj. 2003)
• Gartenhaus (Bj. 2003), Holzbauweise mit Betonplatte, Dach mit Bitumen-Wellplatten belegt
• 3 separate Räume inkl. Werkstatt
Das Grundstück befindet sich im Hamburger Stadtteil Neuengamme. Der idyllische Stadtkern von Bergedorf ist mit dem Auto nur wenige Minuten entfernt. Auch die Hamburger City ist über die A 25 oder die B 5 in etwa 20 Minuten zu erreichen. Bushaltestellen der Buslinien 124, 223 und 227 befinden sich in unmittelbarer Nähe. Eine S-Bahnstation mit ausreichenden PKW-Stellplätzen verbindet Bergedorf mit der Hamburger City.

Eine Grundschule befindet sich im benachbarten Curslack und Kirchwerder. Eine Stadtteilschule ist in Kirchwerder anzufinden. Weiterführende Schulen sind in Bergedorf ansässig. Nahegelegene Kindergärten sind ausreichend vorhanden.

Einkäufe für den täglichen Bedarf können direkt in Curslack / Neuengamme oder in Bergedorf getätigt werden. Banken und Apotheken sind dort ebenfalls ansässig. Die Hamburger City und der idyllische Stadtkern von Bergedorf laden zum Einkaufsbummel ein.

Das Nebeneinander von Wohngrundstücken und ausgiebigen Freiflächen garantiert gerade Familien eine hohe Wohnqualität.
• Die Straße "Neuengammer Hausdeich" ist endgültig hergestellt worden. Der Anschluss an die öffentliche Versorgung für Strom, Gas, Wasser, Abwasser, Telefon ist vorhanden.

• Das Grundstück ist voll erschlossen. Etwaige Sielbaubeiträge sind weder offen noch verrentet.

• Im Grundbuch ist in Abteilung II ein Wegerecht eingetragen. Nähere Einzelheiten hierzu erläutern wir Ihnen gern in einem persönlichen Gespräch. Das Grundbuch in Abteilung III. wird lastenfrei geliefert.

• Baulasten: Gemäß Auskunft aus dem Baulastenverzeichnis ist eine Eintragung vorhanden (Mitbenutzung Drucksielschacht). Nähere Einzelheiten zu der Baulast erläutern wir Ihnen gern in einem persönlichen Gespräch.

• Altlasten: Gemäß Auskunft aus dem Altlastenhinweiskataster sind keine Eintragungen vorhanden.

• Der Hauptwasseranschluss im Keller besteht teilweise aus Blei und ist nach der Trinkwasserverordnung generell austauschpflichtig. Die Kosten hat der Käufer zu tragen.

• Das Objekt wird frei übergeben.

• Übergabe nach Absprache.

• Kaufnebenkosten: Die Grunderwerbssteuer (5,5 % des Kaufpreises) & Notar- und Gerichtskosten (ca. 1,6 % des Kaufpreises) sind vom Käufer zu tragen.

• Dieses Immobilienangebot ist provisionspflichtig für Käufer und Verkäufer. Bei Abschluss eines notariellen Kaufvertrags zahlt sowohl der Käufer als auch der Verkäufer eine Maklercourtage von 3,57 % des Kaufpreises (inkl. gesetzlicher Umsatzsteuer). Die Zahlung erfolgt an die Firma Schneide GmbH, die einen direkten Anspruch auf diese Beträge gegenüber den Vertragspartnern hat.

Für weitere Informationen stehen wir Ihnen vorab gern zur Verfügung.

Ihr Ansprechpartner

Marvin Gröbitz

Bewertung | Verkauf | Vermietung

+49 (0)40 790 277 23-22

groebitz@schneide-gmbh.de

Norbert Schneide Immobilien

Kirchwerder Landweg 1

21037 Hamburg

Telefon: 040 – 790 277 23-0

Telefax: 040 – 723 239 3

Ihre Sofort-Anfrage

Kontaktdaten

Datenschutzhinweis

Allgemeine Geschäftsbedingungen

```