Unsere aktuellen Verkaufsangebote

Ausgewählte Immobilienobjekte zur Eigennutzung oder als Kapitalanlage finden Sie bei uns sowohl in der Metropolregion Hamburg als auch in Schleswig-Holstein und Niedersachsen. Damit sind Ihrem zukünftigen Lebensmittelpunkt oder Investment kaum Grenzen gesetzt.

Unsere Leidenschaft ist es, Ihnen Ihr neues Zuhause zu vermitteln. Dafür stehen wir Ihnen mit unserer langjährigen Erfahrung gerne zur Seite. Einen Überblick über unsere aktuellen Immobilien zum Kauf sehen Sie hier.

Wohnen in der Natur! Neubau - 3-Zimmer Dachgeschoss-Maisonettewohnung mit Balkon - Direkt vom Bauträger u. Provisionsfrei
Achterschlag 138
21039 Hamburg
Objektart: Flat
Zimmer: 3,00
Wohnfläche: 80 m²
Grundstücksfläche: 1.574 m²
Baujahr: 2026
Verkaufsstatus: OFFEN
Kaufpreis: 435.000,00 €

Druckversion
Nutzungsart
Wohnen
Vermarktungsart
Kauf
Objektart
Flat
Objekttyp
Maisonette
Plz
21039
Ort
Hamburg
Zimmer
3,00
Wohnfläche
80 m²
Grundstücksgröße
1.574 m²
Baujahr
2026
Kaufpreis
435.000,00 €
Kaufpreis Stellplatz (Freiplatz)
10.000,00 €(1 verfügbar)
Käufercourtage
Courtagefrei!
Zustand
erstbezug
Verfügbar ab
Frühjahr 2026
Heizungsart
Fußboden
Befeuerung
Luft-WP
Anzahl Zimmer
3,00
Anzahl Schlafzimmer
2,00
Anzahl Badezimmer
1,00
Anzahl Balkone
1,00
Anzahl Terrassen
1,00
Balkon- / Terrassenfläche
6,00 m²
Energieausweis
Energiebedarf: 11.00
Wertklasse: A+
Gültig bis: 01.06.2035
Primärer Energieträger: Luftwp
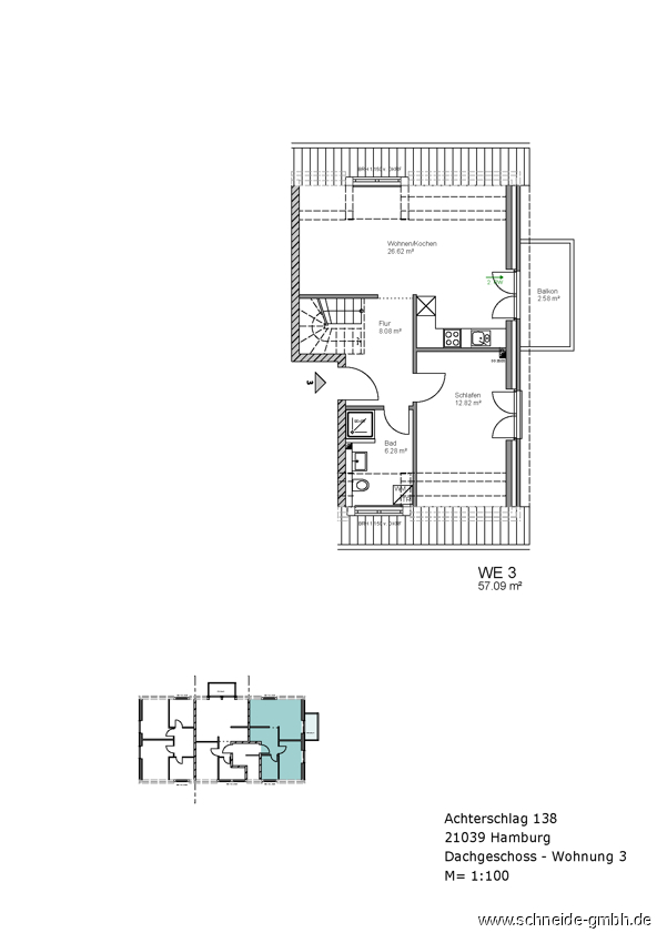
• Maisonettewohnung WE 3 •

In direkter Feldrandlage entsteht mit diesem Bauprojekt eine kleine Wohnanlage mit 5 Eigentumswohnungen. Das Gebäude wird nach den aktuellen Vorgaben und Richtlinien des GEG (Gebäudeenergiegesetz) errichtet.

Die angebotene Wohnung (Whg. 3) befindet sich im Dachgeschoss und erstreckt über eine zweite Wohnebene bis in den ausgebauten Spitzboden. Die Wohnung besticht mit ihrer modernen Ausstattung und eignet sich optimal für Eigennutzer oder Kapitalanleger. Ein Balkon mit einer Grundfläche von ca. 6 m² bietet einen herrlichen Platz zum Verweilen in der Natur. Die genaue Aufteilung der Wohnung entnehmen Sie bitte den beigefügten Grundrissen.

Die Wohnfläche beträgt ca. 80 m² und verteilt sich auf das Wohnzimmer mit offenem Kochbereich, Schlafzimmer, Duschbad mit Handtuchheizkörper und einem Flurbereich sowie einem großen Studiozimmer und Abstellraum im Spitzboden.

Die Räume erhalten jeweils einzeln regulierbare Fußbodenheizungen, welche für eine gleichmäßige und angenehme Wärme sorgen. Dreifach verglaste Fenster in Kombination mit einer dezentral verbauten Lüftungsanlage mit Wärmerückgewinnung unterstreichen die energetische Bauweise. Zusätzlich wird auf dem Dach des Wohnhauses eine Photovoltaikanlage als Unterstützung für die Luft-/ Wasser-Wärmepumpe und dem Allgemeinstrombedarf verbaut.

Anschlüsse für SAT-TV und eine Netzwerkverkabelung sind in allen Wohn- und Schlafräumen vorhanden.

Ein zusätzlicher Abstellraum (je Wohnung) bietet Platz z.B. für das abstellen von Fahrrädern oder Sitzgarnituren. Ein freistehender PKW-Stellplatz kann für EUR 10.000,-- zusätzlich erworben werden. Ein PKW-Stellplatz im Carport (inkl. Vorrichtung für E-Mobilität) steht optional für einen Kaufpreis von EUR 15.000,-- zur Verfügung.

Weitere Einzelheiten entnehmen Sie bitte den weiteren Ausführungen.
• Projektbeschreibung •

4 moderne 2 bis 3-Zimmer Eigentumswohnungen sowie eine 5 Zimmer Doppelhaushälfte| Erstbezug | von ca. 52 m² bis ca. 141 m² Wohnfläche

- Massive Bauweise mit Verblendsteinfassade
- Energetische Bauweise nach GEG
- Beheizung über eine Luft-/ Wasser-Wärmepumpe (Firma Vaillant)
- Installation einer Photovoltaikanlage
- Dezentrale Lüftungsanlage mit Wärmerückgewinnung
- Terrasse & Gartenanteil | Balkon
- Freistehender Stellplatz bzw. KFZ-Stellplatz im Carport (für € 10.000,-- bzw. 15.000,-- zusätzlich zu erwerben)
- Kunststofffenster mit Dreifach-Wärmeschutzverglasung, Farbe außen: anthrazit, Farbe innen: weiß
- Fußbodenheizung | Handtuchheizkörper im Bad
- Hohe Weißlack-Innentüren ca. 2,11 m
- Gegensprechanlage für Wohnung 1 - 4
- Cat-7 Netzwerkverkabelung inkl. Patchfeld
- Design-Vinyl-Böden gem. Baubeschreibung
- Malervlies an Wänden und Decken gem. Baubeschreibung
- Moderne Bäder mit gefliesten Duschtassen
- Abstellraum innerhalb der Wohnung | zusätzlicher Außenabstellraum je Wohnung
- Fertigstellung der Außenanlagen gemäß Bau- und Leistungsbeschreibung

Bei näherem Interesse übersenden wir Ihnen gern eine detaillierte Bauleistungsbeschreibung.
Das Grundstück befindet sich im Hamburger Stadtteil Curslack. Curslack erstreckt sich entlang der Dove-Elbe südlich der A25 entlang. Die knapp 4000 Einwohner leben auf insgesamt 10.6 km² grossteils in gemütlichen Einfamilienhüsern entlang der Deichstrassen.

Die Hamburger City ist über die A 25 oder die B 5 in etwa 25 Autominuten zu erreichen. Bushaltestellen der Buslinie 225 befinden sich in näherer Umgebung. Eine S - Bahnstation mit ausreichenden PKW-Stellplätzen verbindet Bergedorf mit der Hamburger City.

Einkäufe für den täglichen Bedarf können in unmittelbarer Nähe (Edeka, Aldi, Penny) getätigt werden. Schnell zu erreichen ist auch das ansprechende Stadtzentrum von Bergedorf. Banken, Ärzte und eine Apotheke befinden sich ebenfalls im näheren Umfeld.

Eine Grundschule sowie Kindergärten sind in Curslack/Neuengamme oder Altengamme ansässig. Weiterführende Schulen sind in Kirchwerder (Stadtteilschule) und Bergedorf vorhanden.

Quelle: www.vierlanden.de
• Die Zahlung des Kaufpreises erfolgt nach der Makler- und Bauträgerverordnung (MaBV) in maximal 7 Teilraten gemäß Baufortschritt.

• Die Straße "Achterschlag" ist nicht endgültig hergestellt worden. Der Anschluss an die öffentliche Versorgung für Strom, Wasser, Abwasser und Telefon ist im Kaupreis enthalten.

• Das Grundbuch wird lastenfrei in Abteilung III geliefert. In Abteilung II sind zwei Grunddienstbarkeiten für die Hamburger Wasserwerke Blatt 383 eingetragen (Herrichtung und Benutzung von Gräben und Wetterungen).

• Baulasten: Gemäß Auskunft aus dem Baulastenverzeichnis sind keine Eintragungen vorhanden.

• Altlasten: Gemäß Auskunft aus dem Altlastenhinweiskataster sind keine Eintragungen vorhanden.

• Kaufnebenkosten: Die Grunderwerbssteuer (5,5 % des Kaufpreises) & Notar- und Gerichtskosten (ca. 1,6 % des Kaufpreises) sind vom Käufer zu tragen.

Ihr Ansprechpartner

BENJAMIN TIMMANN

TEAMLEITUNG
PROJEKTIERUNG | VERTRIEB

040 – 790 277 23 -18

timmann@schneide-immobilien.de

Norbert Schneide Immobilien

Kirchwerder Landweg 1

21037 Hamburg

Telefon: 040 – 790 277 23-0

Telefax: 040 – 723 239 3

Ihre Sofort-Anfrage

Kontaktdaten

Datenschutzhinweis

Allgemeine Geschäftsbedingungen

```