Unsere aktuellen Verkaufsangebote

Ausgewählte Immobilienobjekte zur Eigennutzung oder als Kapitalanlage finden Sie bei uns sowohl in der Metropolregion Hamburg als auch in Schleswig-Holstein und Niedersachsen. Damit sind Ihrem zukünftigen Lebensmittelpunkt oder Investment kaum Grenzen gesetzt.

Unsere Leidenschaft ist es, Ihnen Ihr neues Zuhause zu vermitteln. Dafür stehen wir Ihnen mit unserer langjährigen Erfahrung gerne zur Seite. Einen Überblick über unsere aktuellen Immobilien zum Kauf sehen Sie hier.

Urbanes Wohnen! Neubau 3-Zimmer Dachgeschosswohnung mit Süd-Balkon - Direkt vom Bauträger-
Mühlenstraße 48
21502 Geesthacht
Objektart: Flat
Zimmer: 3,00
Wohnfläche: 98 m²
Grundstücksfläche: 992 m²
Baujahr: 2026
Verkaufsstatus: OFFEN
Kaufpreis: 499.000,00 €

Druckversion
Nutzungsart
Wohnen
Vermarktungsart
Kauf
Objektart
Flat
Objekttyp
Attic
Plz
21502
Ort
Geesthacht
Zimmer
3,00
Wohnfläche
98 m²
Grundstücksgröße
992 m²
Baujahr
2026
Kaufpreis
499.000,00 €
Kaufpreis Stellplatz (Freiplatz)
12.500,00 €(1 verfügbar)
Käufercourtage
Courtagefrei!
Zustand
erstbezug
Verfügbar ab
September 2026
Heizungsart
Fußboden
Befeuerung
Luft-WP
Anzahl Zimmer
3,00
Anzahl Schlafzimmer
2,00
Anzahl Badezimmer
1,00
Anzahl Balkone
1,00
Balkon- / Terrassenfläche
11,00 m²
Energieausweis
Energiebedarf: 15.00
Wertklasse: A+
Gültig bis: 14.11.2035
Primärer Energieträger: Luftwp
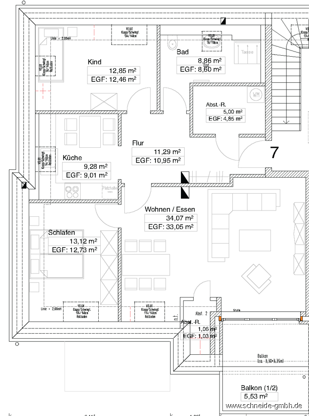
• Dachgeschosswohnung WE7 •

In unmittelbarer Nähe zum Geesthachter Zentrum entsteht mit diesem Projekt eine moderne Wohnanlage mit 7 Eigentumswohnungen. Das Gebäude wird nach den aktuellen Vorgaben und Richtlinien des GEG (Gebäudeenergiegesetz) errichtet.

Die angebotene Wohnung (Whg. ) befindet sich im Dachgeschoss (2. Etage), besticht mit ihrem durchdachten Grundriss und eignet sich optimal für Eigennutzer und Kapitalanleger gleichermaßen. Ein nach Süden ausgerichteter Balkon mit einer Grundfläche von ca. 11,00 m² bietet einen herrlichen Platz zum Verweilen in der Sonne. Die genaue Aufteilung der Wohnung entnehmen Sie bitte dem beigefügten Grundriss.

Die Wohnfläche beträgt ca. 97,50 m² und verteilt sich auf das Wohnzimmer, Küche, Schlafzimmer, Kinder-/ Arbeitszimmer Duschbad mit gefliesten Duschbereich und Abstellraum. Die Räume erhalten jeweils einzeln regulierbare Fußbodenheizungen, welche für eine gleichmäßige und angenehme Wärme sorgen. Sämtliche Dachflächenfenster, mit Ausnahme des Badezimmers, werden mit elektrischen Rollläden ausgestattet und unterstreichen die energetische Bauweise.

Bei der Bemusterung haben Sie zurzeit noch die besondere Möglichkeit, aktiv an der Gestaltung der Innenausstattung mitzuwirken. Wählen Sie ganz nach Ihrem Geschmack z.B. Bodenbeläge, Innentüren, Sanitärobjekte und weitere Ausstattungsdetails aus. So entsteht ein Zuhause, das genau Ihren Vorstellungen entspricht und Ihre persönliche Note trägt.

Das Haus erhält sowohl einen Glasfaser- und Kabel-TV-Anschluss. Anschlüsse für TV und eine Netzwerkverkabelung sind in allen Wohn- und Schlafräumen vorhanden und können zentral über ein verbautes Patchfeld angesteuert werden.

Ein zusätzlicher Abstellraum (Allgemein) bietet Platz für das abstellen von Fahrrädern. Ein (teils) freistehender PKW-Stellplatz steht ebenso zur Verfügung und ist für einen Kaufpreis von € 12.500,-- zusätzlich zu erwerben.

Weitere Einzelheiten entnehmen Sie bitte den weiteren Ausführungen.
• Projektbeschreibung •

7 moderne 2 bis 3-Zimmer Eigentumswohnungen | Erstbezug | von ca. 55 m² bis ca. 102 m² Wohnfläche

- Modernes Mehrfamilienhaus in massiver Bauweise mit robuster Verblendsteinfassade
- Energetische Bauweise nach GEG
- Beheizung über eine Luft-/ Wasser-Wärmepumpe inkl. Warmwasseraufbereitung (Firma Vaillant)
- Einzellüfter in den Bädern (Zuluft über Fensterfalzlüfter)
- Terrasse & Gartenanteil | Balkon
- PKW-Stellplatz je Wohnung (für € 12.500,-- zusätzlich zu erwerben)
- Kunststofffenster mit Dreifach-Wärmeschutzverglasung, Farbe: weiß
- Elektrisch betriebene Alu-Rollläden, Farbe: weiß (ausschließlich in südlicher Ausrichtung)
- Fußbodenheizung | Handtuchheizkörper im Bad
- Ansprechende Innentüren in diversen Designvarianten
- Gegensprechanlage
- Cat-7 Netzwerkverkabelung inkl. Patchfeld
- Design-Vinyl-Böden gem. Baubeschreibung
- Malervlies an Wänden und Decken gem. Baubeschreibung
- Moderne Duschbäder
- Abstellraum innerhalb der Wohnung / Allgemeiner Außenabstellraum für Fahrräder
- Fertigstellung der Außenanlagen gemäß Bau- und Leistungsbeschreibung

Bei näherem Interesse übersenden wir Ihnen gern eine detaillierte Bauleistungsbeschreibung.
Die Wohnanlage befindet sich fußläufig ca. 10 Min. entfernt vom Geesthachter Elbufer sowie Freibad und Bootshafen. Einkaufsmöglichkeiten für den täglichen Bedarf befinden sich in direkter Umgebung und sind fußläufig gut zu erreichen. Zum gemütlichen Flanieren lädt die angrenzende Fußgängerzone "Bergedorfer Straße" mit ihrer bunten und exklusiven Vielfalt an Geschäften, Boutiquen und Restaurants ein.

Geesthacht, mit seinen über 30.000 Einwohnern, liegt östlich der hamburger Stadtgrenze und bietet alle Annehmlichkeiten einer modernen Kleinstadt.

Im Westen der Stadt ist Geesthacht schnell über die gute Anbindung zur A 25 oder B5 zu erreichen und auch die öffentliche Verkehrsmittel in Richtung Hamburg und in die benachbarten Ortschaften sind über den naheliegenden ZOB gegeben.

Alle Schularten, Kindergärten, Fachärzte und ein Krankenhaus befinden sich innerhalb der Stadt und runden das positve Bild ab.
• Die Zahlung des Kaufpreises erfolgt nach der Makler- und Bauträgerverordnung (MaBV) in maximal 7 Teilraten gemäß Baufortschritt.

• Die Straße "Mühlenstraße" ist endgültig hergestellt worden. Der Anschluss an die öffentliche Versorgung für Strom, Wasser, Abwasser, Glasfaser und Kabel-TV ist im Kaupreis enthalten.

• Das Grundbuch wird lastenfrei in Abteilung III. geliefert. In Abteilung II. ist eine Grunddienstbarkeit (Wege- und Leitungrecht) eingetragen. Nähere Einzelheiten erläutern wir Ihnen hierzu gern auf Anfrage.

• Baulasten: Gemäß Auskunft aus dem Baulastenverzeichnis sind keine Eintragungen vorhanden.

• Altlasten: Gemäß Auskunft aus dem Altlastenhinweiskataster sind keine Eintragungen vorhanden.

• Kaufnebenkosten: Die Grunderwerbssteuer (6,5 % des Kaufpreises) & Notar- und Gerichtskosten (ca. 1,6 % des Kaufpreises) sind vom Käufer zu tragen.

Ihr Ansprechpartner

BENJAMIN TIMMANN

TEAMLEITUNG
PROJEKTIERUNG | VERTRIEB

040 – 790 277 23 -18

timmann@schneide-immobilien.de

Norbert Schneide Immobilien

Kirchwerder Landweg 1

21037 Hamburg

Telefon: 040 – 790 277 23-0

Telefax: 040 – 723 239 3

Ihre Sofort-Anfrage

Kontaktdaten

Datenschutzhinweis

Allgemeine Geschäftsbedingungen

```