Unsere aktuellen Verkaufsangebote

Ausgewählte Immobilienobjekte zur Eigennutzung oder als Kapitalanlage finden Sie bei uns sowohl in der Metropolregion Hamburg als auch in Schleswig-Holstein und Niedersachsen. Damit sind Ihrem zukünftigen Lebensmittelpunkt oder Investment kaum Grenzen gesetzt.

Unsere Leidenschaft ist es, Ihnen Ihr neues Zuhause zu vermitteln. Dafür stehen wir Ihnen mit unserer langjährigen Erfahrung gerne zur Seite. Einen Überblick über unsere aktuellen Immobilien zum Kauf sehen Sie hier.

Neubau 2 Zimmer Wohnung mit Balkon am Pönitzer See!
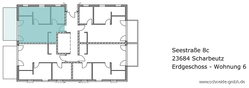
Seestraße 8
23684 Scharbeutz / Klingberg
Objektart: Flat
Zimmer: 2,00
Wohnfläche: 54 m²
Baujahr: 2026
Verkaufsstatus: OFFEN
Kaufpreis: 320.000,00 €

Druckversion
Nutzungsart
Wohnen
Vermarktungsart
Kauf
Objektart
Flat
Objekttyp
Ground floor
Plz
23684
Ort
Scharbeutz / Klingberg
Zimmer
2,00
Wohnfläche
54 m²
Baujahr
2026
Kaufpreis
320.000,00 €
Kaufpreis Stellplatz (Freiplatz)
10.000,00 €(1 verfügbar)
Käufercourtage
2,38 % des Kaufpreises inkl. 19 % USt.
Zustand
erstbezug
Verfügbar ab
nach Absprache
Anzahl Zimmer
2,00
Anzahl Schlafzimmer
1,00
Anzahl Badezimmer
1,00
Energieausweis
Energiebedarf:
Wertklasse:
Gültig bis:
Primärer Energieträger:
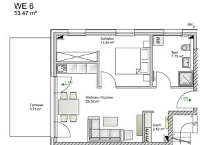
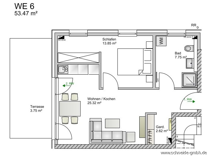
Diese durchdacht geschnittene 2-Zimmer-Wohnung verfügt über 54 m² und besticht durch eine moderne, offene Raumaufteilung. Herzstück der Wohnung ist der großzügige Wohn- und Essbereich, der dank der breiten Fensterfront einen direkten Ausblick ins Grüne bietet.

Direkt an den Wohnbereich schließt sich die offene Küche an, die optimal in den Raum integriert ist.
Das Schlafzimmer bietet ausreichend Platz für ein Doppelbett sowie einen Kleiderschrank.

Das moderne Duschbad ist mit bodengleicher Dusche und hochwertigen Sanitärobjekten ausgestattet. Ein angrenzender Abstellraum sowie eine praktische Garderobennische im Eingangsbereich bieten zusätzlichen Stauraum und runden das Raumangebot funktional ab.

Zur Wohnung gehört außerdem ein separater Kellerabstellraum und ein PKW Stellplatz der Optional für 10.000€ erworben werden kann.
• Projektbeschreibung •

8 moderne 2 bis 4-Zimmer Eigentumswohnungen| Erstbezug | von ca. 52 m² bis ca. 116 m² Wohnfläche

- Massive Bauweise im Verblend- und Wärmedämmverbundsystem
- Energetische Bauweise nach GEG
- Beheizung über eine Luft-/ Wasser-Wärmepumpe (Firma Vaillant)
- Dezentrale Lüftungsanlage mit Wärmerückgewinnung
- Terrasse & Gartenanteil | Balkon | Loggia
- Freistehender Stellplatz (für € 10.000,- zusätzlich zu erwerben)
- Kunststofffenster mit Dreifach-Wärmeschutzverglasung, Farbe außen: anthrazit, Farbe innen: weiß
- Elektrische Außenrollläden
- Fußbodenheizung | Handtuchheizkörper im Bad
- Hohe Weißlack-Innentüren ca. 2,11 m
- Gegensprechanlage für Wohnung 3 - 8
- Netzwerkverkabelung inkl. Patchfeld
- Design-Vinyl-Böden gem. Baubeschreibung
- Malervlies an Wänden und Decken weiß gestrichen gem. Baubeschreibung
- Moderne Bäder mit gefliesten Duschtassen
- Abstellraum innerhalb der Wohnung | zusätzlicher Kellerraum je Wohnung
- Fertigstellung der Außenanlagen gemäß Bau- und Leistungsbeschreibung

Bei näherem Interesse übersenden wir Ihnen gern eine detaillierte Bauleistungsbeschreibung.
Das Neubauprojekt befindet sich in der idyllischen Seestraße im beliebten Scharbeutzer Ortsteil Klingberg – einer ruhigen und naturnahen Wohnlage direkt am Großen Pönitzer See. Klingberg zeichnet sich durch seine entspannte Atmosphäre, eine gewachsene Wohnstruktur und eine geringe Einwohnerzahl aus – ideal für alle, die Ruhe, Erholung und naturnahe Lebensqualität schätzen.

Die unmittelbare Nähe zum See bietet ein einzigartiges Wohngefühl: Morgendliche Spaziergänge entlang des Ufers, entspannte Stunden am Wasser oder sportliche Aktivitäten wie Radfahren, Joggen oder Stand-up-Paddling beginnen direkt vor der Haustür. Der Ort verfügt über gut ausgebaute Rad- und Wanderwege, die sich durch die sanft hügelige Landschaft der Holsteinischen Schweiz ziehen und zu Erkundungstouren einladen.

Trotz der ruhigen Lage ist die lebendige Ostseeküste mit dem beliebten Ferienort Scharbeutz nur wenige Autominuten entfernt. Dort erwarten Sie feinsandige Strände, vielfältige Gastronomie, Einkaufsmöglichkeiten sowie kulturelle Angebote – ideal für alle, die die Nähe zum maritimen Leben nicht missen möchten.

Dank der guten Anbindung an das regionale Verkehrsnetz ist auch die Anreise unkompliziert: Die Autobahn A1 sowie der Bahnhof in Scharbeutz sind schnell erreichbar, sodass auch Hamburg oder Lübeck bequem in kurzer Zeit angefahren werden können.

Klingberg ist der ideale Rückzugsort für alle, die naturnah wohnen und dennoch flexibel bleiben möchten.
• Die Zahlung des Kaufpreises erfolgt nach der Makler- und Bauträgerverordnung (MaBV) in maximal 7 Teilraten gemäß Baufortschritt.

• Die Straße "Seestraße" ist nicht endgültig hergestellt worden. Der Anschluss an die öffentliche Versorgung für Strom, Wasser, Abwasser und Telefon ist im Kaufpreis enthalten.

• Das Grundbuch wird lastenfrei in Abteilung II und III geliefert.

• Baulasten: Gemäß Auskunft aus dem Baulastenverzeichnis sind keine Eintragungen vorhanden.

• Altlasten: Gemäß Auskunft aus dem Altlastenhinweiskataster sind keine Eintragungen vorhanden.

• Kaufnebenkosten: Die Grunderwerbssteuer (6,5 % des Kaufpreises) & Notar- und Gerichtskosten (ca. 1,6 % des Kaufpreises) sind vom Käufer zu tragen.

• Dieses Immobilienangebot ist provisionspflichtig für den Käufer und Verkäufer. Bei Abschluss eines notariellen Kaufvertrags zahlt der Käufer als auch der Verkäufer eine Maklercourtage von 2,38 % des Kaufpreises (inkl. gesetzlicher Umsatzsteuer). Die Zahlung erfolgt an die Firma Schneide GmbH, die einen direkten Anspruch auf diesen Betrag gegenüber des Vertragspartners hat.

Für weitere Informationen stehen wir Ihnen vorab gern zur Verfügung.

Ihr Ansprechpartner

Benjamin Timmann

Teamleitung Verkauf | Projektplanung

+49 (0)40 790 277 23-18

timmann@schneide-gmbh.de

Norbert Schneide Immobilien

Kirchwerder Landweg 1

21037 Hamburg

Telefon: 040 – 790 277 23-0

Telefax: 040 – 723 239 3

Ihre Sofort-Anfrage

Kontaktdaten

Datenschutzhinweis

Allgemeine Geschäftsbedingungen

```