Unsere aktuellen Verkaufsangebote

Ausgewählte Immobilienobjekte zur Eigennutzung oder als Kapitalanlage finden Sie bei uns sowohl in der Metropolregion Hamburg als auch in Schleswig-Holstein und Niedersachsen. Damit sind Ihrem zukünftigen Lebensmittelpunkt oder Investment kaum Grenzen gesetzt.

Unsere Leidenschaft ist es, Ihnen Ihr neues Zuhause zu vermitteln. Dafür stehen wir Ihnen mit unserer langjährigen Erfahrung gerne zur Seite. Einen Überblick über unsere aktuellen Immobilien zum Kauf sehen Sie hier.

Leben direkt am Deich - Familienidyll an der Elbe
Zollenspieker Hauptdeich 72
21037 Hamburg
Objektart: House
Zimmer: 5,00
Wohnfläche: 125 m²
Grundstücksfläche: 861 m²
Baujahr: 1974
Verkaufsstatus: OFFEN
Kaufpreis: 399.000,00 €

Druckversion
Nutzungsart
Wohnen
Vermarktungsart
Kauf
Objektart
House
Objekttyp
Detached house
Plz
21037
Ort
Hamburg
Zimmer
5,00
Wohnfläche
125 m²
Grundstücksgröße
861 m²
Baujahr
1974
Kaufpreis
399.000,00 €
Kaufpreis Stellplatz (Garage)
0,00 €(2 verfügbar)
Käufercourtage
3,57 % des Kaufpreises inkl. 19 % USt.
Zustand
gepflegt
Verfügbar ab
nach Absprache
Heizungsart
Zentral
Befeuerung
Anzahl Zimmer
5,00
Anzahl Schlafzimmer
4,00
Anzahl Badezimmer
2,00
Anzahl Terrassen
1,00
Energieausweis
Energiebedarf:
Wertklasse: F
Gültig bis: 12.05.2035
Primärer Energieträger: Oel
Dieses im Jahr 1974 errichtete Einfamilienhaus befindet sich auf einem großzügigen, ca. 861m² großen Grundstück unmittelbar am Elbdeich und bietet ca. 125 m² Wohnfläche.
Die Immobilie befindet sich in einem guten Zustand und wurde in den letzten Jahren regelmäßig in Stand gehalten.
Aus Gründen des Hochwasserschutzes wird die rot schraffierte Grundstücksfläche von der Freien und Hansestadt Hamburg zurück erworben.

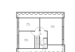
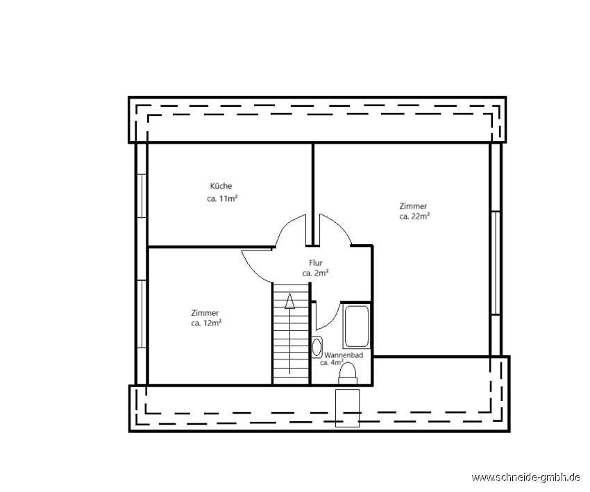
Der große, pflegeleichte Garten und die gepflasterte Zufahrt mit Zugang zur Doppelgarage vermitteln einen einladenden ersten Eindruck. Das Haus ist zur Zeit in zwei Wohnungen aufgeteilt. Im Erdgeschoss erwartet Sie ein heller Eingangsbereich, von dem Sie die Dachgeschosswohnung mit ca. 51m² und die Erdgeschosswohnung mit ca. 74m² erreichen.

Im Erdgeschoss befindet sich ein Wannenbad mit Fenster, die großzügige Küche, ein Schlafzimmer, ein Kinderzimmer sowie den Wohn- und Essbereich.
Von hier aus gelangen Sie auf die sonnige, nach Südwesten ausgerichtete Terrasse und in den Garten.

Die Dachgeschosswohnung beherbergt drei geräumige Zimmer, eine Küche und ein Duschbad.
Über eine ausklappbare Dachbodenleiter erreichen Sie vom Flur aus den Spitzboden, der zusätzlichen Stauraum bietet.

Abgerundet wird das Angebot durch eine Doppelgarage und einen angrenzenden Pavillon hinter dem Haus – ideal für eine BBQ Ecke und entspannte Gartenstunden mit der Familie.
Das Haus ist in zwei Wohneinheiten geteilt worden sodass der obere Teil separat vermietet wurde. Das Haus wird jedoch mietfrei übergeben.

Dieses Haus in Hamburg-Kirchwerder vereint ländliche Idylle mit Nähe zur Natur und bietet Ihnen die einmalige Gelegenheit, sich Ihren persönlichen Wohntraum zu verwirklichen.
Baustoffe, usw.: Bj. 1974

• Massive Bauweise
• Verblendfassade
• Luftschicht Isolierung
• Satteldach mit Betondachpfanne
• Dachunterschläge aus Holz
• Stahl-/ Betondecke
• Fallrohre und Dachrinnen aus Zink

Fenster/Tür/Treppe/Bodenbeläge:

• Kunststofffenster mit Außenrolläden im EG, Bj. 1974
• Veluxfenster im Dachgeschoss, Bj. 2016
• Holzinnentüren (Weißlack-Stiltüren)
• Betontreppe mit Fliesenstufen und Edelstahlhandlauf
• Bodenbeläge: Fliesen, PVC und Parkett

Sanitärobjekte:

Wannenbad (Erdgeschoss):

• Wand- und Bodenfliesen (blau)
• WC
• Sanitärobjekte in weiß

Wannenbad (Dachgeschoss):

• Wand- und Bodenfliesen (blau)
• Wandhängendes-WC
• Sanitärobjekte in weiß
• Badewanne

Heizungsanlage:

• Öl Zentralheizung inkl. Wärmeaufbereitung, Bj. 1974, 3x 1.500l Tank, separater Kessel Fa. Viessmann
• Rippenheizkörper mit Thermostat
Diese charmante Immobilie befindet sich in ländlicher Lage im beliebten Hamburger Stadtteil Kirchwerder, einem Teil der Vier- und Marschlande. Die direkte Lage am Elbufer und inmitten einer naturbelassenen Umgebung mit weiten Wiesen, Wasserläufen und historischen Deichen macht das Objekt besonders attraktiv für Naturliebhaber und Ruhesuchende.

Die Nachbarschaft ist geprägt von historischen Bauernhäusern, Reetdachkaten und einer einmaligen Kulturlandschaft, die ideal ist für ausgedehnte Fahrradtouren und Spaziergänge. Zahlreiche Rad- und Wanderwege, Reitställe sowie Möglichkeiten für Wassersport befinden sich in unmittelbarer Nähe.

Trotz der idyllischen Lage ist die Anbindung an die Hamburger Innenstadt hervorragend. Über die A25 oder B5 ist die City in ca. 25–30 Minuten mit dem Auto erreichbar. Zudem verkehrt die Buslinie 124 regelmäßig in Richtung Hamburg-Bergedorf sowie zum ZOB Hamburg. Eine direkte Fährverbindung vom nahegelegenen Zollenspieker Fährhaus nach Niedersachsen unterstreicht die besondere Lage.

Einkaufsmöglichkeiten für den täglichen Bedarf befinden sich im nahen Ortskern von Kirchwerder (z. B. Rewe, Getränkemarkt, DM Drogerie Markt, Bank, Apotheke), im benachbarten Curslack/Neuengamme (u. a. Penny, Edeka, Aldi, Banken) sowie im nur wenige Autominuten entfernten Bergedorf mit seiner beliebten Einkaufsstraße Sachsentor.

Auch die Bildungsinfrastruktur ist gut: Die im Jahr 2025 neu erbaute Stadtteilschule (Grundschule bis Abitur) ist nach dem Modell einer offenen
Ganztagsschule organisiert und befindet sich direkt in Kirchwerder, während weitere Schulformen sowie Kindergärten und Ärzte im nahegelegenen Bergedorf zu finden sind und bequem per Bus erreichbar sind.
• Die Straße Zollenspieker Hauptdeich ist endgültig hergestellt worden. Der Anschluss an die öffentliche Versorgung für Strom, Wasser, Telefon und Kabel-TV ist vorhanden.

• Das Grundbuch wird lastenfrei in Abteilung II. und III. geliefert.

• Die Front Zollenspieker Hauptdeich ist unbesiedelt und es können noch Sielbaubeiträge erhoben werden.
Das Abwasser wird über eine private vollbiologische Kläranlage aus dem Jahr 2024 entsorgt.

• Baulasten: Gemäß Auskunft aus dem Baulastenverzeichnis sind keine Eintragungen vorhanden.

• Altlasten: Gemäß Auskunft aus dem Altlastenhinweiskataster sind keine Eintragungen vorhanden.

• Übergabe nach Absprache.

• Kaufnebenkosten: Die Grunderwerbssteuer (5,5 % des Kaufpreises) & Notar- und Gerichtskosten (ca. 1,6 % des Kaufpreises) sind vom Käufer zu tragen.

• Dieses Immobilienangebot ist provisionspflichtig für Käufer und Verkäufer. Bei Abschluss eines notariellen Kaufvertrags zahlt sowohl der Käufer als auch der Verkäufer eine Maklercourtage von 3,57 % des Kaufpreises (inkl. gesetzlicher Umsatzsteuer). Die Zahlung erfolgt an die Firma Schneide GmbH, die einen direkten Anspruch auf diese Beträge gegenüber den Vertragspartnern hat.

Für weitere Informationen stehen wir Ihnen vorab gern zur Verfügung.

Ihr Ansprechpartner

Jana Schütz

Verkauf | Vermietung

+49 (0)40 790 277 23-15

schuetz@schneide-gmbh.de

Norbert Schneide Immobilien

Kirchwerder Landweg 1

21037 Hamburg

Telefon: 040 – 790 277 23-0

Telefax: 040 – 723 239 3

Ihre Sofort-Anfrage

Kontaktdaten

Datenschutzhinweis

Allgemeine Geschäftsbedingungen

```